



Shapoorji Pallonji Treetopia Pune
Welcome to Shapoorji Pallonji Treetopia Pune, a distinguished residential land parcel development in the tranquil yet rapidly developing area of Purandhar. These expansive, precisely executed plots are ideal for crafting your dream home or securing a robust, future-ready investment in Pune’s most promising corridor.
Project
Treetopia
Developer
Shapoorji Pallonji
Location
Pune
RERA
Coming Soon
Launch Date
January 2026
Current Status
Under Construction
Possession
December 2027
Typology
Residential Plots
Config.
Carpet Area
Price
Residential Plots
1800 SqFt
₹ 84.99 Lakhs
Royal Plots
2200 SqFt
₹ 99.99 Lakhs
Features & Amenities At Shapoorji Pallonji Treetopia
Eco Clubhouse
Tiered Security
Smart Infrastructure
Wellness Zones
Water Management
Sports Courts
Location & Connectivity From Shapoorji Pallonji Treetopia Pune
Railway & Metro Station
- Saswad Road Railway Station – 20 minutes | 12 km
- Hadapsar Railway Station – 45 minutes | 28 km
- Pune Railway Station – 60 minutes | 35 km
Major Highways &Airports
- Pune–Bangalore Highway (NH 48) – 10 minutes | 6 km
- Saswad–Bopdev–Hadapsar Road – 5 minutes | 2 km
- Pune International Airport – 60 minutes | 40 km
- Proposed Purandar International Airport – 25 minutes | 15 km
Schools & Colleges
- Delhi Public School – 10 minutes | 4 km
- Christ College – 18 minutes | 6 km
- St. Arnold’s Central School – 15 minutes | 5 km
Healthcare Facilities
- Sahyadri Hospital – 15 minutes | 5 km
- Noble Hospital – 10 minutes | 3 km
- Columbia Asia Hospital – 20 minutes | 7 km
Shopping & Cineplexes
- Local Markets & Daily Essentials – 5 minutes | 2 km
- Season Mall – 45 minutes | 28 km
- Amanora Mall & Cinepolis – 50 minutes | 30 km
- Phoenix Marketcity – 65 minutes | 40 km
Gardens & Business Hubs
- Open Landscapes – 5 minutes| 2 km
- Bopdev Ghat Nature Trails – 25 minutes | 15 km
- Magarpatta IT Park – 45 minutes | 30 km
- MIDC Industrial Areas – 30 minutes | 20 km
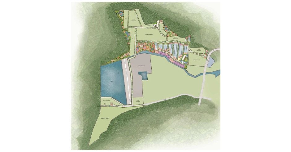
Treetopia Pune Layout Plans & Configuration
Latest Videos of SP Treetopia
Photo Gallery of Shapoorji Pallonji Treetopia Project
Why To Invest In SP Treetopia Pune?
Investment Security & Growth Potential
- Developer Trust: Align your future with the 150-year legacy of the Shapoorji Pallonji Group, ensuring unmatched construction quality and absolute project completion reliability.
- Capital Appreciation: Benefit from exponential value growth as these plots sit strategically near the upcoming Purandar International Airport and burgeoning IT clusters.
Legal Integrity & Lifestyle Excellence
- Legal Compliance: Secure your assets with a venture planned for full RERA registration, guaranteeing transparent transactions, strict legal clarity, and robust buyer protection.
- Unmatched Lifestyle: Own a masterpiece within a secure, gated community that integrates biophilic design with resort-grade facilities for a truly holistic living experience.
FAQs Of Shapoorji Treetopia
A: Appreciation is projected to be robust, driven by the upcoming Purandar International Airport and the new IT Park, transforming the area into a major hub.
A: The RERA number is Coming Soon; however, Shapoorji Pallonji Treetopia ensures absolute legal transparency with full MahaRERA compliance, clear land titles and a legacy of timely delivery.
A: The location offers exceptional future connectivity via the Pune-Bangalore Highway and the proposed airport, ensuring reduced commute times for IT professionals.
A: Their 150+ year legacy, Pan-India presence, and commitment to ethical practices ensure a reliable and trustworthy land investment for buyers.
A: These residential land parcels by Shapoorji Realty Pune offer the flexibility to build independent homes or villas, following the master-planned gated community’s architectural guidelines.
A: The airport and IT Park are major catalysts for growth. Early investment in these plots is advised to capture maximum long-term capital appreciation.
Latest News & Articles On Shapoorji Treetopia Pune
Contact Us
Enquire Now
For Site Visit, Appointment Compulsory















